Продажа коммерческой недвижимости, 169.7 м²
Помещения для бизнеса в удобных локациях
Главнаяarrow_forward_iosПродажаarrow_forward_iosКоммерческаяarrow_forward_iosОбъект №278
Продается ТАУНХАУС, используется сейчас под жилье: жилые апартаменты, возможно использовать как под жилье для семьи так и под любой вид коммерческой деятельности (гостиница, офис, магазин, стоматология и прочее, без ограничений) с отдельным ВХОДОМ в самом центре г. Архангельска, на проспекте Чумбарова - Лучинского 41 (между универмагом и ул. Карла Либкнехта,). В шаговой доступности от всех деловых, культурных и торговых объектов города.
• 3 мин. до набережной Северной Двины;
• 2 мин до универмага,
• 3 мин до центральной площади Ленина,
Здание в идеальном состоянии 2008 года постройки: брус/кирпич/ цоколь - бетон/ снаружи утепление, сайдинг/, все коммуникации (тепло центральное, вода , стоки , все в идеальном состоянии, земля под зданием в собственности. Дом очень теплый.
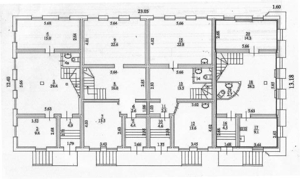
Общий метраж: 169,7 кв.м., 1 и 2 этаж по 60 кв.м. и 3 этаж(мансардный с окнами) 49 кв.м.. В помещении: окна стеклопакеты, стороны на восток,юг, запад, хорошая шумоизоляция. Окна Стеклопакеты, алюминиевые радиаторы, пол – керамогранит на 1м этаже, паркет дуб - на 2м этаже, сан. узлы на этажах (душевая кабина, ванна, водонагреватели).
В помещении установлена пожарная сигнализация с системой пожаротушения, видеонаблюдение, есть обычная и принудительная система вентиляции.
Состояние хорошее, Один собственник, возможен обмен на квартиру(ы) меньшей площади.
Продажа в связи с переездом.
• Открытая парковка по периметру дома позволит оставить машину рядом!
Торопитесь приобрести помещение, это будет хорошее долгосрочное вложение!
ВСЕ ДОКУМЕНТЫ ГОТОВЫ .
ПОКУПАЯ ПОМЕЩЕНИЕ У НАС, ВЫ НЕ ПЛАТИТЕ НИКАКУЮ КОМИССИЮ.
Ссылка на объявление: https://sevd.ru/sale/salecommercial/278
15 900 000
Евгений


Архангельская область, Архангельск, проспект Чумбарова-Лучинского, д 41

Информация по объекту

Площадь169.7 Этаж3 Этажей в доме3 Высота потолков2,7 Юридический адресПредоставляется ПланировкаСмешанная Кол-во мокрых точек3 Электрическая мощность15 СостояниеТиповой ремонт МебельНет ДоступСвободный ПарковкаНаземная Количество мест парковки5 НалогУСН (упрощенная система налогообложения)

Информация по зданию

Год постройки2008 Тип строенияОбъект свободного назначения Площадь здания650 Участок0,65 КатегорияДействующее ВентиляцияПриточная КондиционированиеМестное ОтоплениеЦентральное Система пожаротушенияСигнализация

Инфраструктура


check Буфетcheck Столоваяcheck Центральная рецепцияcheck Гостиницаcheck Банкомат check Аптекаcheck Отделение банкаcheck Медицинский центрcheck Салон красотыcheck Нотариальная контора check Ателье одеждыcheck Паркcheck Ресторанcheck Фитнес-центрcheck Супермаркетcheck Минимаркет check Торговая зонаcheck Конференц-зал