2х комн. Ленингр.271к1
Продажа квартир на любой вкус и бюджет
Главнаяarrow_forward_iosПродажаarrow_forward_iosКвартирыarrow_forward_iosОбъект №176017
Описание
ОТЛИЧНОЕ ПРЕДЛОЖЕНИЕ!
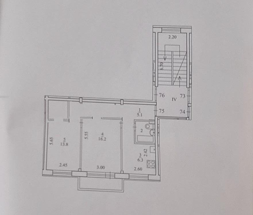
КВАРТИРА – 44,4 м/кв. на 4ом этаже 5ти этажного дома

В ТИХОМ СПАЛЬНОМ РАЙОНЕ ГОРОДА!!!
Панельный жилой дом , сделан капитальный ремонт дома, крыши с заменой внутренних коммуникаций, расположен в самом центре спального района города, вдалеке от дорог и шума автомобилей!
В шаговой доступности от всех деловых, культурных и торговых объектов района города,
Развитая инфраструктура:
• Рядом магазины, остановки в шаговой доступности , школа, детский сад, современный парк вдоль набережной у реки, детские площадки. Новые автобусы регулярно и каждые 5 минут, до города ехать 15 мин.
О доме
• Тип дома: плиты несущие
• Этажей в доме: 5
Квартира с балконом продается в предчистовой отделке - это позволяет спроектировать и обустроить внутреннее пространство квартиры по своему личному вкусу и предпочтениям.
Входная новая железная дверь с тепло и шумоизоляцией. Полностью поменяны полы с шумоизоляцией, новая электропроводка, в санузле новые трубы с водосчетчиками, газовый счетчик новый, новая газовая плита. Санузел подготовлен под облицовку плиткой, которая есть в наличии. Вся сантехника: Ванна, унитаз, раковины - новые.
Чистые отремонтированные подъезды, с окнами со стеклопакетами, спокойные вежливые соседи.
Большая территория и продуманная инфраструктура дома:
• Открытая вместительная парковка по всему периметру дома позволит оставить машину жильцам и вашим гостям рядом!
Обширная дворовая территория:
• Со спортивной и детской площадкой.
• Зоной отдыха со скамейками, для спокойного отдыха взрослых и детей на свежем воздухе!
Цена 90 000р/кв.м. составит выгодную конкуренцию всем городским новостройкам и вторичному жилью.
ВСЕ ДОКУМЕНТЫ ГОТОВЫ.
ПОКУПАЯ КВАРТИРУ У НАС, ВЫ НЕ ПЛАТИТЕ НИКАКУЮ КОМИССИЮ
ПОКАЖЕМ В ЛЮБОЕ УДОБНОЕ ВАМ ВРЕМЯ.
Ссылка на объявление: https://sevd.ru/sale/saleapartments/176017
4 100 000
Евгений


Архангельская область, Архангельск, проспект Ленинградский, д 271, к1
redeemДанный объект можно приобрести в ипотеку

Информация об объекте

Количество комнат2-к квартира Этаж4 Площадь44.4 Жилая площадь30 Площадь кухни6.3 Балкон1 Совмещенных санузлов1 ОкнаУлица РемонтОтсутствует

Информация о доме

Год постройки1968 Тип домаПанельный Этажей в доме5 Серия домаБрежневка Высота потолков2.6 ПарковкаНаземная